Eerste Van der Helststraat 82 3

AMSTERDAM

Kenmerken

Status
Beschikbaar
Type woning
Bovenwoning
Bouwjaar
1885
Verdiepingen
1
Aantal kamers
4
Aantal slaapkamers
3

Omschrijving

Wil je deze woning bezichtigen? Klik dan op de knop 'Neem contact op' of 'vraag bezichtiging aan.' Na je aanvraag ontvang je direct een bericht en kies je zelf het tijdstip dat jou past.

Would you like to view this property? Click on the ‘Contact us’ or ‘Request a viewing’ button. After submitting your request, you will receive an immediate response and can choose a time that suits you.

Wonen met uitzicht over het Sarphatipark – stijlvol gerenoveerd, licht ... rd, licht hoekappartement op eigen grond.
Wonen in De Pijp wordt zelden zo aantrekkelijk als hier: direct aan het Sarphatipark, in een rustig stukje van de bruisende wijk, ligt dit recent gerenoveerde hoekappartement van circa 82 m². De woning is onderdeel van een recent gesplitst pand op eigen grond, heeft een energielabel A en is met oog voor detail afgewerkt. Licht, lucht en sfeer voeren de boventoon.

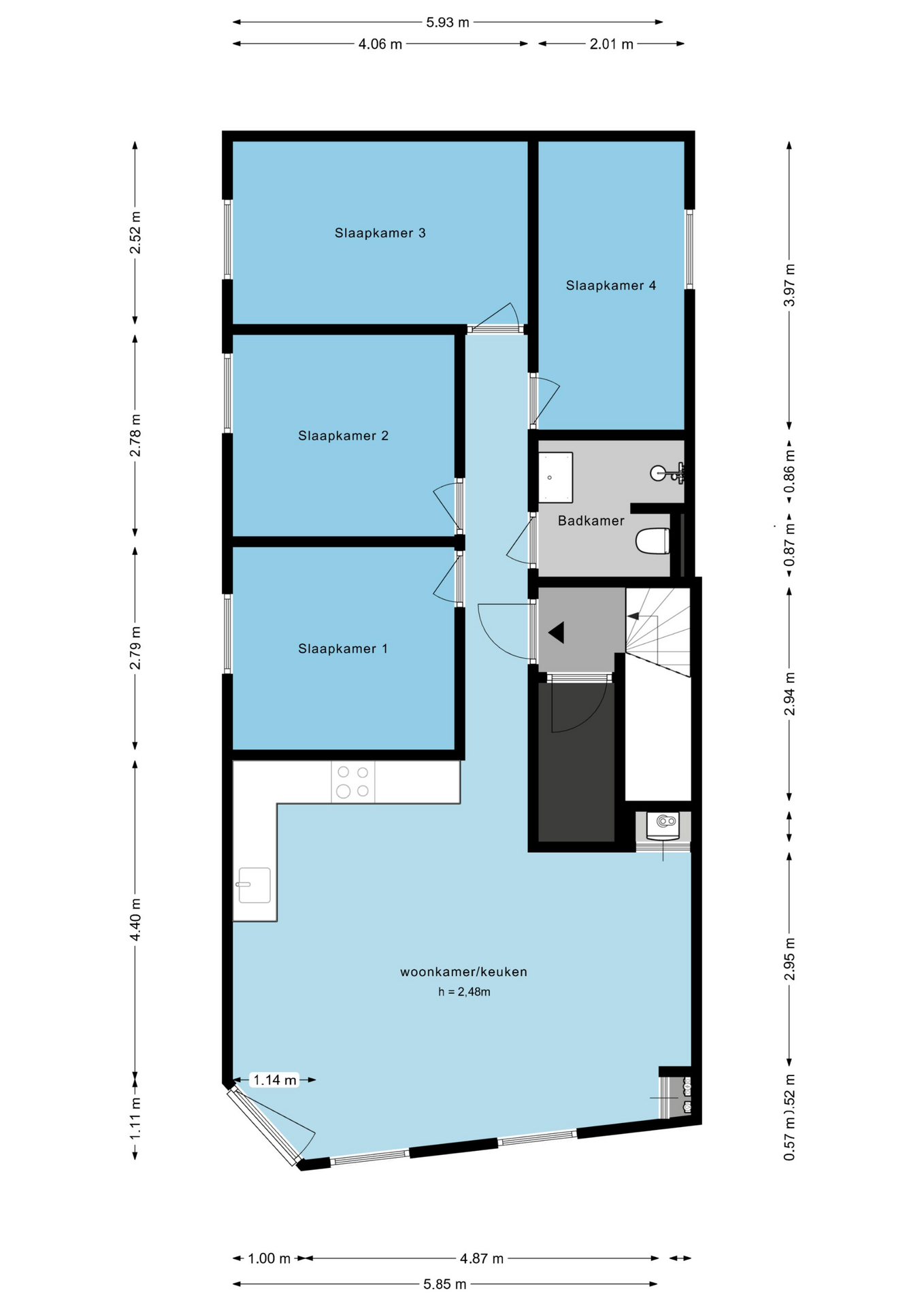
Indeling:
Via het verzorgde, gedeelde trappenhuis bereikt u de woning op de tweede etage.
De hal biedt toegang tot alle vertrekken. De lichte woonkeuken ligt prachtig op de hoek, met grote ramen en een weids uitzicht over het park – een heerlijke plek om te koken, te eten en te genieten van het groen buiten.
De woning beschikt over drie ruime slaapkamers en een vierde, kleinere kamer, perfect als werkplek, kinderkamer of logeerruimte.
De badkamer is modern uitgevoerd met een inloopdouche, zwevend toilet, wastafelmeubel met spiegelkast en handdoekenradiator.
De visgraatvloer door de gehele woning verbindt de ruimtes op stijlvolle wijze en zorgt voor een warme, tijdloze uitstraling.

Omgeving:
Het Sarphatipark ligt letterlijk aan uw voeten – ideaal voor een ochtendwandeling of een zomerse picknick. In de directe omgeving vindt u een levendige mix van gezellige cafés, goede restaurants en kwaliteitswinkels. De Albert Cuypmarkt, Ferdinand Bolstraat en Van Woustraat liggen allemaal op loopafstand.

Bereikbaarheid:
De bereikbaarheid is uitstekend. Metrostation De Pijp (Noord/Zuidlijn) ligt op een paar minuten lopen en brengt u in korte tijd naar zowel Station Zuid als Amsterdam Centraal. Ook diverse tram- en buslijnen zijn nabij en de ring A10 is eenvoudig bereikbaar. Met de fiets bent u binnen enkele minuten in het historische centrum.

Bijzonderheden:
- Woonoppervlakte circa 82 m²
- Vier slaapkamers
- Hoekappartement met uitzicht op het Sarphatipark
- Nieuwe keuken
- Visgraatvloer door de gehele woning
- Eigen grond (geen erfpacht)
- Splitsing 2025
- Funderingscode II (stukken beschikbaar via Move.nl)
- Energielabel A

VvE:
- Splitsing gerealiseerd in 2025
- VvE wordt momenteel opgestart
- MJOP-update gepland in december 2025
- Servicekosten nog vast te stellen; vanwege alle splitsingswerkzaamheden zal dit relatief laag zijn

Reeds uitgevoerde werkzaamheden t.b.v. de splitsing:
- Dakwerkzaamheden
- Schilderwerk (binnen en buiten)
- Voegwerk

Parkeren:
Betaald parkeren voor de deur op de openbare weg. Bewoners kunnen een parkeervergunning aanvragen. Voor meer informatie kunt u kijken op de website van de gemeente Amsterdam / parkeren.

Meetinstructie:
Deze woning is gemeten met gebruikmaking van de Meetinstructie, die is gebaseerd op de normen zoals vastgelegd in NEN 2580. De Meetinstructie is bedoeld om een meer eenduidige manier van meten toe te passen voor het geven van een indicatie van de gebruiksoppervlakte. De meetinstructie sluit verschillen in meetuitkomsten niet volledig uit, door bijvoorbeeld interpretatieverschillen, afrondingen of beperkingen bij het uitvoeren van de meting. Hoewel wij de woning zorgvuldig hebben opgemeten, wordt noch door Boomsma & Bruinsma Makelaars, noch door de verkoper/verhuurder enige aansprakelijkheid aanvaard voor afwijkingen in de doorgegeven maten. Koper/huurder verklaart in de gelegenheid te zijn gesteld om de opgegeven maten te (laten) controleren.

Deze informatie is door ons met de nodige zorgvuldigheid samengesteld. Onzerzijds wordt echter geen enkele aansprakelijkheid aanvaard voor enige onvolledigheid, onjuistheid of anderszins, dan wel de gevolgen daarvan. Alle opgegeven maten en oppervlakten zijn indicatief. Verkoper kan niet garanderen dat alle technische installaties voldoen aan de huidige NEN - norm. Koper heeft zijn eigen onderzoek plicht naar alle zaken die voor hem of haar van belang zijn. Met betrekking tot deze woning is de makelaar adviseur van verkoper. Wij adviseren u een deskundige (NVM-) makelaar in te schakelen die u begeleidt bij het aankoopproces. Indien u specifieke wensen heeft omtrent de woning, adviseren wij u deze tijdig kenbaar te maken aan uw aankopend makelaar en hiernaar zelfstandig onderzoek te (laten) doen. Indien u geen deskundige vertegenwoordiger inschakelt, acht u zich volgens de wet deskundige genoeg om alle zaken die van belang zijn te kunnen overzien. Van toepassing zijn de NVM voorwaarden.

Rechtsgeldige koopovereenkomst pas ná ondertekening.
Een mondelinge overeenstemming tussen particuliere verkoper en de particuliere koper is niet rechtsgeldig. Met andere woorden: er is geen koop. Er is pas sprake van een rechtsgeldige koop als de particuliere verkoper en de particuliere koper de koopovereenkomst hebben ondertekend. Dit vloeit voort uit artikel 7:2 Burgerlijk Wetboek. Een bevestiging van de mondelinge overeenkomst per e-mail of een toegestuurd concept van de koopovereenkomst wordt overigens niet gezien als een ‘ondertekende koopovereenkomst’.

----

Living by the Sarphatipark – bright, elegant and fully renovated

In a prime location in De Pijp, overlooking the beautiful Sarphatipark, you’ll find this recently renovated corner apartment of approximately 82 m². A home full of light, character and comfort, situated in a recently divided building on freehold land, and boasting energy label A.
Inside, modern finishes meet classic charm: herringbone flooring, high ceilings, a brand-new kitchen, and a contemporary bathroom create a warm and stylish atmosphere throughout.

Layout:
Access via a neat shared staircase to the third floor.
The central hallway connects all rooms. The spacious corner kitchen offers lovely park views – a bright, welcoming space perfect for cooking and entertaining.
There are three generously sized bedrooms and a smaller fourth room, ideal as a study or nursery. The bathroom is sleek and modern, featuring a walk-in shower, vanity unit with mirror cabinet, towel radiator and floating toilet.

Location:
Living by Sarphatipark offers the best of both worlds: greenery and tranquillity right in the vibrant heart of De Pijp. Cafés, restaurants and boutiques are all within walking distance, as are the Albert Cuyp Market and Ferdinand Bolstraat.

Accessibility:
Perfectly connected: De Pijp metro station (North/South line) is just around the corner, providing quick access to both Amsterdam Zuid and Central Station. Multiple tram and bus lines are nearby, and the A10 ring road is easily accessible by car.

Highlights:
- Approx. 82 m² of living space
- Four bedrooms
- Bright corner position with park views
- Fully renovated
- Brand-new kitchen and bathroom
- Herringbone flooring throughout
- Freehold property (no ground lease)
- Division completed in 2025
- Foundation code II (documents available via Move.nl)
- Energy label A

Homeowners’ Association (VvE):
- Division completed in 2025
- Association currently being established
- Maintenance plan update scheduled for December 2025
- Service costs to be determined; since division maintenance has been done it'll be relatively low

Works completed for division:
- Roof maintenance
- Brick pointing and facade work
- Interior and exterior painting

Parking:
Paid parking is available on the street in front of the building. Residents can apply for a parking permit. For more information, please visit the City of Amsterdam website / parking.

Measuring Instruction:
This house is measured using the Measuring Instruction, which is based on the standards laid down in NEN 2580. The Measuring Instruction is intended to apply a more uniform way of measuring to give an indication of the usable area. The measurement instruction does not completely rule out differences in measurement results, for example, due to differences in interpretation, rounding off or limitations in carrying out the measurement. Although we have taken careful measurements of the property, neither Boomsma & Bruinsma Makelaars nor the seller accepts any liability for discrepancies in the transmitted measurements. The buyer/tenant declares to have been given the opportunity to check the given measurements (or have them checked).

This information has been compiled by us with due care. However, we accept no liability for any incompleteness, inaccuracy or otherwise, or the consequences thereof. All dimensions and surface areas are indicative. If you have specific wishes regarding the property, we advise you to make these known to your broker in good time and to do your own research (or have this done). If you do not engage an expert representative, you will consider yourself expert enough by law to be able to oversee all matters of importance. The NVM conditions apply.

Legally valid purchase agreement only after signing.
A verbal agreement between private seller and private buyer is not legally valid. In other words, there is no sale. There is only a legal purchase when the private seller and the private buyer have signed the purchase agreement. This follows from Article 7:2 of the Civil Code. A confirmation of the verbal agreement by e-mail or a sent draft of the purchase agreement is not seen as a ‘signed purchase agreement’.
Lees meer Toon minder

Ontdek de omgeving

Openbaar vervoer
Restaurants
Winkels
Cafe's & Barren
Musea & Amusement
Fitness