Groenlandse kade 73 A

VINKEVEEN

4 KA
2 SK
258 M2
€ 2.695.000 vrij op naam

Kenmerken

Status
Beschikbaar
Type woning
Penthouse
Bouwjaar
2001-
Verdiepingen
2
Aantal kamers
4
Aantal slaapkamers
2

Omschrijving

Exclusief wonen aan de Vinkeveense Plassen
Wij bieden te koop aan, V.O.N. (tevens B.T.W. woning), een energiezuinige semi-casco woning verdeeld over twee verdiepingen, gelegen op de bovenste lagen van een luxueuze appartementenvilla. Hier ervaart u het vakantiegevoel het hele jaar door. Geniet in elk seizoen van het adembenemende panoramische uitzicht op de Vinkeveense Plassen. Of u nu binnen zit of ontspant op het riante terras met glazen balustrade – de Vinkeveense Plassen vormen een ... inkeveense Plassen vormen een verlengstuk van uw leefruimte. De appartementenvilla huurt het eiland aan de plas van het Waterschap AGV.

De villa met rieten kap is omgeven door een fraai aangelegde tuin aan zowel de voor- als achterzijde. Via een karakteristieke ophaalbrug bereikt u het bijbehorende eiland in de plas, waar zich de privé-aanlegsteigers bevinden – perfect voor uw sloep, zeilboot of een frisse duik.

Het terrein van circa 9.600 m² is volledig omheind en voorzien van twee op afstand bedienbare schuifpoorten. Op eigen terrein beschikt u over een eigen garage voor twee auto’s en een parkeerhaven met drie eigen extra gastenplaatsen.

Het appartement is nog geheel naar eigen wens in te delen en af te werken. De royale open leefruimte met keuken biedt talloze mogelijkheden: een aparte werkruimte, loungehoek of eetkamer – de indeling kiest u zelf.

Indeling:

Begane grond
Algemene ruimte
Een centrale entree met lift, trap en vide verbindt de verschillende verdiepingen op ruimtelijke wijze met elkaar.

Eerste verdieping
De woning is te betreden via beide verdiepingen, maar de hoofdingang is op de eerste verdieping, daar bevindt zich de ruime entree met garderobe, interne trap naar boven en een gastentoilet.
De hoofdruimte kan worden ingericht als woon-, werk- of leefruimte naar eigen voorkeur. Twee grote schuifpuien geven toegang tot de terrassen.
De moderne keuken (van het merk Arclinea) beschikt over een royaal kookeiland met aangrenzende tafel welke elektronisch in hoogte verstelbaar is.

Tweede verdieping
Via een nog te realiseren trap bereikt u de slaapverdieping. Op de overloop weggewerkt in een kast, bevinden zich aansluitingen voor wasmachine en droger, evenals een tweede toilet.
Voor het overige is de indeling volledig vrij te bepalen. Aansluitingen en leidingen zijn al voorbereid, zodat u eenvoudig een tweede slaapkamer, fitnessruimte of kantoor kunt creëren.
De badkamer is voorbereid voor een inloopdouche, ligbad, dubbele wastafel en derde toilet.
Daarnaast is er nog een aparte technische ruimte links van de entree.

Bijzonderheden:
- Vaste Notaris
- Energielabel A+
- Gasloos
- Lucht/water-warmtepomp
- HR+++ beglazing (triple glas)
- Balansventilatie met WTW-systeem
- 4 zonnepanelen per appartement gelegen op het dak van de villa
- Bouwjaar 2022
- Semi-casco oplevering
- Vloerverwarming (verwarming én koeling)
- Glasvezelaansluiting
- Wateronthardingssysteem
- Inbouw airconditioning in alle ruimtes
- Wand- en vloercontactdozen voor elektra, tv en internet
- Video-intercom en bediening van schuifhek vanuit appartement en auto
- Lift aanwezig naar beide verdiepingen
- Garage ca. 32 m² voor twee auto’s voorzien van elektriciteit en uit te breiden met zonnepanelen
- Eigen aanlegsteiger met elektra en watervoorziening
- Voorbereiding voor alarmsysteem
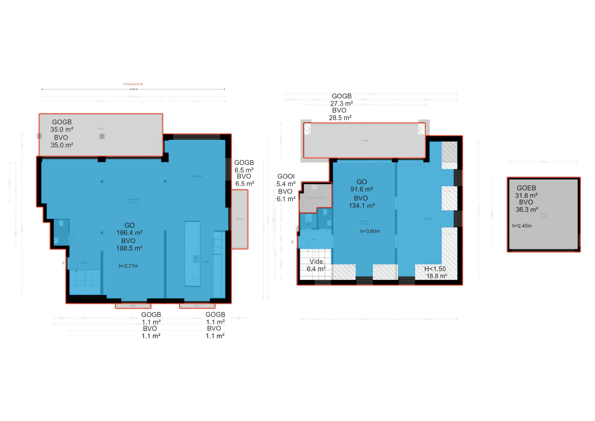
- Woonoppervlakte ca. 258 m²
- Terrassen ca. 71 m²

Waar vindt u dit?
Ervaar elegantie, ruimte en pure luxe in harmonie met de natuur. Deze woning combineert comfort, klasse en een fenomenaal uitzicht over het schitterende Vinkeveense waterlandschap.

Ligging:
Vinkeveen ligt aan de rand van het Groene Hart, landelijk maar strategisch tussen Amsterdam en Utrecht. Via de A2, N201 en N212 is de locatie uitstekend bereikbaar, ook vanaf Schiphol en de Randstad.
Het waterrijke gebied biedt talloze recreatiemogelijkheden: fietsen en wandelen door de groene polders, of zwemmen, suppen, kanoën en varen in en op het kristalheldere water. Via de plassen vaart u eenvoudig richting de Vecht naar Breukelen, Loenen aan de Vecht of de Loosdrechtse Plassen, ook Amsterdam is via het water te bereiken. Uw eigen steiger ligt letterlijk voor de deur.
Het centrum van Vinkeveen, met twee supermarkten, diverse winkels en restaurants, bevindt zich op nog geen 6 kilometer afstand, dit geldt tevens voor het centrum van Abcoude.

Meetinstructie:
Deze woning is gemeten met gebruikmaking van de Meetinstructie, die is gebaseerd op de normen zoals vastgelegd in NEN 2580. De Meetinstructie is bedoeld om een meer eenduidige manier van meten toe te passen voor het geven van een indicatie van de gebruiksoppervlakte. De meetinstructie sluit verschillen in meetuitkomsten niet volledig uit, door bijvoorbeeld interpretatieverschillen, afrondingen of beperkingen bij het uitvoeren van de meting. Hoewel wij de woning zorgvuldig hebben opgemeten, wordt noch door Boomsma & Bruinsma Makelaars, noch door de verkoper enige aansprakelijkheid aanvaard voor afwijkingen in de doorgegeven maten. Koper verklaart in de gelegenheid te zijn gesteld om de opgegeven maten te (laten) controleren.

Deze informatie is door ons met de nodige zorgvuldigheid samengesteld. Onzerzijds wordt echter geen enkele aansprakelijkheid aanvaard voor enige onvolledigheid, onjuistheid of anderszins, dan wel de gevolgen daarvan. Alle opgegeven maten en oppervlakten zijn indicatief. Verkoper kan niet garanderen dat alle technische installaties voldoen aan de huidige NEN - norm. Koper heeft zijn eigen onderzoek plicht naar alle zaken die voor hem of haar van belang zijn. Met betrekking tot deze woning is de makelaar adviseur van verkoper. Wij adviseren u een deskundige (NVM-) makelaar in te schakelen die u begeleidt bij het aankoopproces. Indien u specifieke wensen heeft omtrent de woning, adviseren wij u deze tijdig kenbaar te maken aan uw aankopend makelaar en hiernaar zelfstandig onderzoek te (laten) doen. Indien u geen deskundige vertegenwoordiger inschakelt, acht u zich volgens de wet deskundige genoeg om alle zaken die van belang zijn te kunnen overzien. Van toepassing zijn de NVM voorwaarden.

Rechtsgeldige koopovereenkomst pas ná ondertekening.
Een mondelinge overeenstemming tussen zakelijke verkoper en de particuliere koper is niet rechtsgeldig. Met andere woorden: er is geen koop. Er is pas sprake van een rechtsgeldige koop als de zakelijke verkoper en de particuliere koper de koopovereenkomst hebben ondertekend. Dit vloeit voort uit artikel 7:2 Burgerlijk Wetboek. Een bevestiging van de mondelinge overeenkomst per e-mail of een toegestuurd concept van de koopovereenkomst wordt overigens niet gezien als een ‘ondertekende koopovereenkomst’.
In de situatie van zakelijke verkoper èn zakelijke koper, is er geen schriftelijkheidseis. Dat wil zeggen tussen twee zakelijke partijen, is een mondelinge overeenkomst al rechtsgeldig en bindend.

-----

Exclusive Living on the Vinkeveense Plassen

We offer for sale, including costs (price includes title transfer fees and is also a VAT-liable property), an energy-efficient semi-finished residence spread over two floors, located on the upper levels of a luxurious apartment villa. Here, you can enjoy a year-round holiday feeling. Take in the breathtaking panoramic views of the Vinkeveense Plassen in every season. Whether you are indoors or relaxing on the spacious terrace with glass balustrade—the Vinkeveense Plassen become an extension of your living space. The apartment villa leases the island on the lake from the AGV Water Authority.

The thatched-roof villa is surrounded by beautifully landscaped gardens both at the front and rear. A characteristic drawbridge provides access to the adjoining island in the lake, where the private mooring docks are located—perfect for your sloop, sailboat, or a refreshing swim.

The approximately 9,600 m² estate is fully fenced and equipped with two remotely controlled sliding gates. On-site, you have a private double garage and a parking area with three additional guest spaces.

The apartment can still be fully customized and finished to your taste. The spacious open living area with kitchen offers countless possibilities: a separate workspace, lounge area, or dining room—the layout is entirely up to you.

Layout:
Ground Floor
General area:
A central entrance with lift, staircase, and atrium connects the different floors in an open and spacious way.

First Floor
The residence can be accessed via both floors, but the main entrance is on the first floor. Here, you’ll find a spacious hallway with wardrobe, internal staircase to the upper floor, and a guest toilet.
The main area can be arranged as a living, working, or leisure space according to your preference. Two large sliding doors provide access to the terraces.
The modern kitchen (by Arclinea) features a generous cooking island with adjoining table, which can be adjusted electronically in height.

Second Floor
A yet-to-be-installed staircase leads to the sleeping floor. On the landing, hidden in a closet, are connections for a washing machine and dryer, as well as a second toilet.
The remaining layout is completely flexible. Connections and piping have already been prepared, allowing you to easily create a second bedroom, fitness area, or office.
The bathroom is prepared for a walk-in shower, bathtub, double sink, and third toilet.
Additionally, there is a separate technical room to the left of the entrance.

Features:
- Appointed Notary
- Energy label A+
- Gas-free
- Air-to-water heat pump
- HR+++ glazing (triple glas)
- Balanced ventilation with heat recovery system (WTW)
- 4 solar panels per apartment located on the villa roof
- Built in 2022
- Semi-finished delivery
- Underfloor heating (heating and cooling)
- Fiber-optic internet connection
- Water softening system
- eBuilt-in air conditioning in all rooms
- Wall and floor sockets for electricity, TV, and internet
- Video intercom and electric gate control from both apartment and car
- Lift access to both floors
- Garage approx. 32 m² for two cars, with electricity and solar panel expansion option
- Private jetty with electricity and water supply
- Alarm system preparation
- Living area approx. 258 m²
- Terraces approx. 71 m²

Location

Experience elegance, space, and pure luxury in harmony with nature. This residence combines comfort, class, and a phenomenal view over the stunning Vinkeveen lake landscape.

Vinkeveen is located on the edge of the “Groene Hart” (Green Heart), offering a rural yet strategic location between Amsterdam and Utrecht. The A2, N201, and N212 provide excellent accessibility, including from Schiphol Airport and the Randstad region.

The lake district offers countless recreational opportunities: cycling and walking through the green polders, or swimming, paddleboarding, canoeing, and boating in the crystal-clear water. From the lakes, you can easily sail towards the River Vecht to Breukelen, Loenen aan de Vecht, or the Loosdrechtse Plassen. Amsterdam is also accessible by water. Your private mooring is literally right at your doorstep.

The center of Vinkeveen—with two supermarkets, various shops, and restaurants—is less than 6 kilometers away, as is the center of Abcoude.



Measuring Instruction:
This house is measured using the Measuring Instruction, which is based on the standards laid down in NEN 2580. The Measuring Instruction is intended to apply a more uniform way of measuring to give an indication of the usable area. The measurement instruction does not completely rule out differences in measurement results, for example, due to differences in interpretation, rounding off or limitations in carrying out the measurement. Although we have taken careful measurements of the property, neither Boomsma & Bruinsma Makelaars nor the seller accepts any liability for discrepancies in the transmitted measurements. The buyer declares to have been given the opportunity to check the given measurements (or have them checked).

This information has been compiled by us with due care. However, we accept no liability for any incompleteness, inaccuracy or otherwise, or the consequences thereof. All dimensions and surface areas are indicative. If you have specific wishes regarding the property, we advise you to make these known to your broker in good time and to do your own research (or have this done). If you do not engage an expert representative, you will consider yourself expert enough by law to be able to oversee all matters of importance. The NVM conditions apply.

Legally valid purchase agreement only after signing.
A verbal agreement between commercial seller and private buyer is not legally valid. In other words, there is no sale. There is only a legal purchase when the commercial seller and the private buyer have signed the purchase agreement. This follows from Article 7:2 of the Civil Code. A confirmation of the verbal agreement by e-mail or a sent draft of the purchase agreement is not seen as a ‘signed purchase agreement’.
In a transaction between a commercial seller and a commercial buyer, there is no statutory requirement for the agreement to be concluded in writing. Accordingly, an oral agreement between two business parties is legally valid and binding.
Lees meer Toon minder

Ontdek de omgeving

Openbaar vervoer
Restaurants
Winkels
Cafe's & Barren
Musea & Amusement
Fitness