Nicolaas Witsenkade 47 D

AMSTERDAM

Kenmerken

Status
Verkocht
Type woning
Bovenwoning
Bouwjaar
-1906
Verdiepingen
1
Aantal kamers
3
Aantal slaapkamers
2

Omschrijving

Zeer licht en onder architectuur ontworpen 3-kamer appartement met 2 badkamers en een dakterras gelegen aan de populaire Nicolaas Witsenkade. Het appartement kijkt uit over de Singelgracht, heeft een nieuwe fundering (2024) en is gelegen op eigen grond!

De Nicolaas Witsenkade is een bijzondere plek: een ruime en rustige straat met voldoende parkeergelegenheid, ideaal gelegen in het centrum, vlakbij de levendige Utrechtsestraat en aan de rand van de populaire wijk de Pijp.

... wijk de Pijp.

***FOR ENGLISH SEE BELOW***

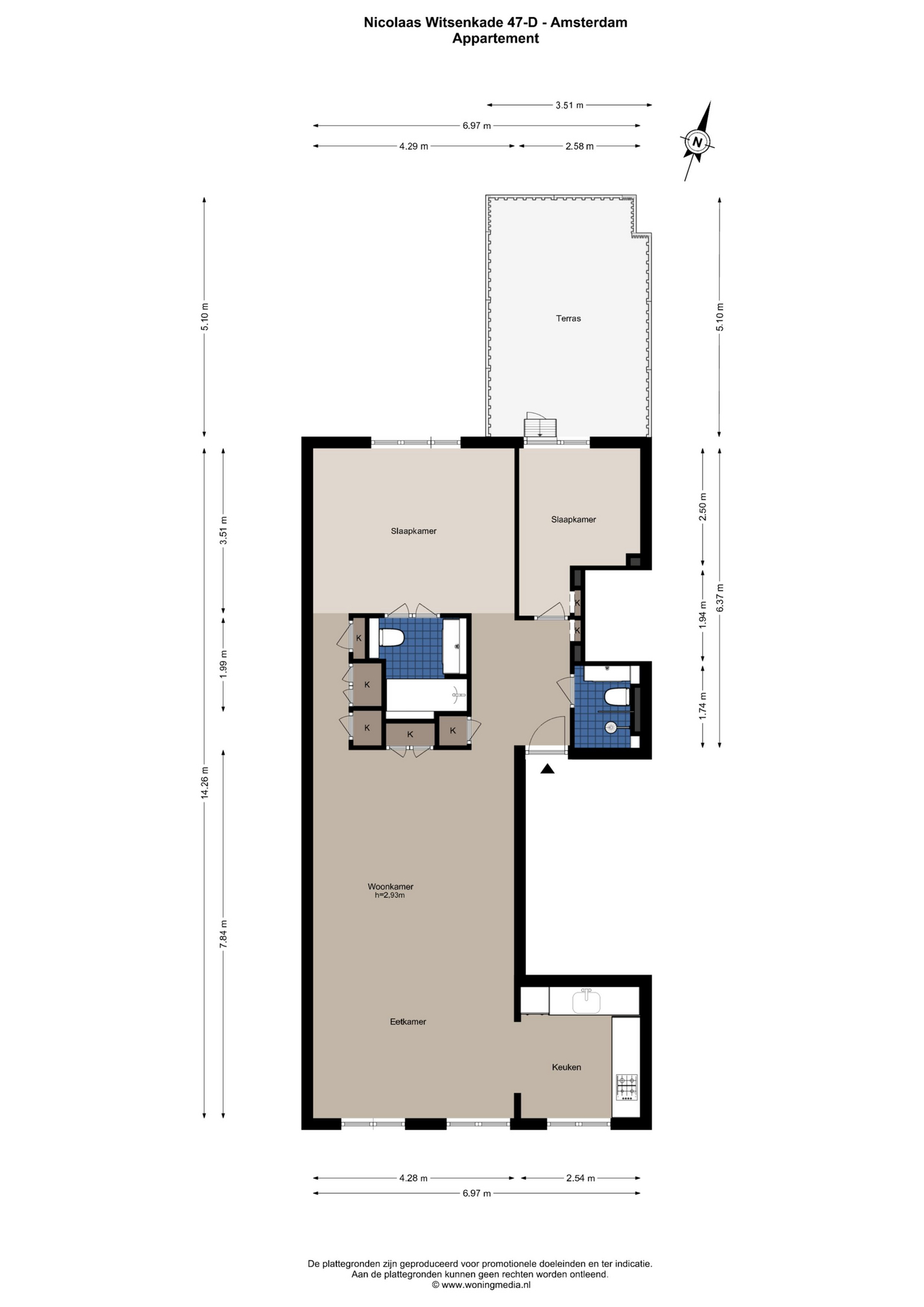
Indeling:
Via de gedeelde en zeer ruime entree op de tweede verdieping kom je in de hal. Vanuit hier heb je toegang tot de ruime woonkamer. Een heerlijke ruimte met een hoog sierlijst plafond en 3 grote ramen met geweldig uitzicht op de gracht. De moderne, open keuken bevindt zich aan de voorzijde en is van alle gemakken voorzien: vaatwasser, inductiekookplaat, wasmachine, koel-vriescombinatie etc. Terwijl u kookt kunt u genieten van alle plezierboten die dagelijks voorbij varen.

Het appartement is in 2010 volledig onder architectuur gerenoveerd. Hierdoor is het appartement op een slimme manier in tweeën gedeeld door een multifunctionele ‘kubus’-structuur die op een slimme manier de en-suite badkamer, inloopkast en alle kastruimte voor het appartement omsluit. Bovendien draaien de kubusdeuren onopvallend in de kubusstructuur naar buiten om de kamers van elkaar te scheiden. Hierdoor heeft het appartement een meer open en luchtig gevoel van voor tot achter, terwijl er toch privacy is als dat nodig is. De 2 slaapkamers bevinden zich beide aan de achterzijde. De ruime slaapkamer heeft de badkamer en-suite en is voorzien van wastafel, toilet en ligbad. De tweede slaapkamer geeft toegang tot het ruime dakterras.

Aan deze zijde bevindt zich ook de tweede badkamer met wastafel, toilet en douche. Ideaal als er gasten op bezoek komen. Verder ligt er door het hele appartement ligt een prachtige donkere wengé houten visgraat vloer.

Het appartement heeft een externe berging van ca. 6m² en de berging is bereikbaar via de ingang aan de Huidekoperstraat.

In 2024 is de fundering volledig vernieuwd en toen is ook al het schilderwerk aan beide zijden uitgevoerd.

Omgeving:
De woning is gelegen in het centrum, tussen het Frederiksplein en de Weteringschans en tegenover de Stadhouderskade. Het appartement ligt in hartje Amsterdam: de Utrechtsestraat, de Amstel, de grachtengordel, de Ferdinand Bolstraat, de Van Woustraat en de bekende Albert Cuypstraat liggen om de hoek. Het aanbod van gezellige restaurants, cafés en winkels is dan ook zeer divers. Daarnaast ligt het Sarphatipark op een paar minuten lopen, ideaal voor een ontspannen middag in de zon.

Bereikbaarheid:
Het pand is goed bereikbaar met de auto vanaf de ringweg A10 via de S112. De Nicolaas Witsenkade is geen doorgaande weg, waardoor het altijd rustig is voor de deur. Er is ook voldoende parkeergelegenheid in de buurt. Kijk voor een parkeervergunning op de website van de gemeente.

Met metrolijn 52 (noord/zuidlijn) is het Centraal Station binnen 10 minuten te bereiken. Tramlijn 1 vanaf station Muiderpoort naar station Lelylaan, tramlijn 24 vanaf het Frederiksplein naar de Boelelaan/Vu en tramlijn 4 vanaf station Rai naar het Centraal Station. Bovendien ligt het Amstelstation op slechts een paar minuten fietsen.

Bijzonderheden:
- Mooi 3-kamer appartement van ca. 83 m²;
- Gelegen in het centrum, met prachtig uitzicht op de gracht;
- Nieuwe fundering;
- Gelegen op eigen grond;
- Energielabel C, met dubbele beglazing;
- Nieuwe CV ketel geplaatst in 2025;
- 2 slaapkamers;
- 2 badkamers
- Hoge plafonds, vrij uitzicht en veel licht;
- Dakterras aan de achterzijde, met middag- en avondzon;
- Gezonde en actieve VvE;
- Servicekosten € 172,43 per maand;
- Externe berging van ca. 6m²;
- Oplevering in overleg.

Parkeren:
Betaald parkeren voor de deur op de openbare weg. Bewoners kunnen een parkeervergunning aanvragen. Voor meer informatie kunt u kijken op de website van de gemeente Amsterdam www.amsterdam.nl/parkeren.

Meetinstructie:
Deze woning is gemeten met gebruikmaking van de Meetinstructie, die is gebaseerd op de normen zoals vastgelegd in NEN 2580. De Meetinstructie is bedoeld om een meer eenduidige manier van meten toe te passen voor het geven van een indicatie van de gebruiksoppervlakte. De meetinstructie sluit verschillen in meetuitkomsten niet volledig uit, door bijvoorbeeld interpretatieverschillen, afrondingen of beperkingen bij het uitvoeren van de meting. Hoewel wij de woning zorgvuldig hebben opgemeten, wordt noch door Boomsma & Bruinsma Makelaars, noch door de verkoper enige aansprakelijkheid aanvaard voor afwijkingen in de doorgegeven maten. Koper/huurder verklaart in de gelegenheid te zijn gesteld om de opgegeven maten te (laten) controleren.

Deze informatie is door ons met de nodige zorgvuldigheid samengesteld. Onzerzijds wordt echter geen enkele aansprakelijkheid aanvaard voor enige onvolledigheid, onjuistheid of anderszins, dan wel de gevolgen daarvan. Alle opgegeven maten en oppervlakten zijn indicatief. Indien u specifieke wensen heeft omtrent de woning, adviseren wij u deze tijdig kenbaar te maken aan uw makelaar en hiernaar zelfstandig onderzoek te (laten) doen. Indien u geen deskundige vertegenwoordiger inschakelt, acht u zich volgens de wet deskundige genoeg om alle zaken die van belang zijn te kunnen overzien. Van toepassing zijn de NVM voorwaarden.

Rechtsgeldige koopovereenkomst pas ná ondertekening.
Een mondelinge overeenstemming tussen particuliere verkoper en de particuliere koper is niet rechtsgeldig. Met andere woorden: er is geen koop. Er is pas sprake van een rechtsgeldige koop als de particuliere verkoper en de particuliere koper de koopovereenkomst hebben ondertekend. Dit vloeit voort uit artikel 7:2 Burgerlijk Wetboek. Een bevestiging van de mondelinge overeenkomst per e-mail of een toegestuurd concept van de koopovereenkomst wordt overigens niet gezien als een ‘ondertekende koopovereenkomst’.

--------

*ENGLISH*

Very bright and architecturally designed 3-room apartment with 2 bathrooms and a roof terrace located on the popular Nicolaas Witsenkade. The apartment overlooking the Singelgracht, has a new foundation (2024) and is situated on freehold land!

The Nicolaas Witsenkade is a special place: a spacious and quiet street with ample parking, ideally located in the center, near the lively Utrechtsestraat and on the edge of the popular Pijp area.

Layout:
Through the shared and very spacious entrance on the second floor you enter the hallway. From here you have access to the spacious living room. A lovely space with a high decorative moulded ceiling and 3 large windows with great views of the canal. The modern, open kitchen is located at the front with all amenities: dishwasher, induction hob, washing machine, fridge-freezer etc. While cooking you can enjoy all the pleasure boats that pass by daily.

Internally, the apartment was completely renovated in 2010 and architect designed. As a result, the apartment is cleverly divided in the middle by a multipurpose ‘cube’ structure.This cleverly encases the en-suite bathroom , walk in closet and all cupboard space for the apartment. In addition the cube doors discretely built into the cube structure swing out to separate the rooms from each other. This enables the apartment to benefit from a more open airy feel from front to rear while allowing privacy as required. The 2 bedrooms are both located at the rear. The spacious bedroom has the bathroom en-suite and includes sink, toilet and bathtub. The second bedroom gives access to the spacious roof terrace.

Also on this side is the second bathroom with a sink, toilet and shower. Ideal when guests are visiting. Throughout the entire apartment is a beautiful dark wenge wood herringbone floor.

The apartment has an external storage room of approx. 6m². The storage room is accessible via the entrance on the Huidekoperstraat.

In 2024, the foundation was completely renewed and also then all the painting work on both sides.

Environment:
The property is located in the city center, between Frederiksplein and the Weteringschans and opposite the Stadhouderskade. The apartment is located in the heart of Amsterdam: the Utrechtsestraat, the Amstel, the canal belt, the Ferdinand Bolstraat, the Van Woustraat and the famous Albert Cuypstraat are just around the corner. The range of cozy restaurants, cafes and stores is therefore very diverse. In addition, the Sarphatipark is a few minutes' walk away, ideal for a relaxing afternoon in the sun.

The property is easily accessible by car from the A10 ring road via the S112. The Nicolaas Witsenkade is not a through road, which ensures that it is always quiet in front of the door. There is also ample parking in the vicinity. For a parking permit, please check the website of the Municipality.

By metro line 52 (north/south line), Central Station can be reached within 10 minutes. Tram line 1 from station Muiderpoort to station Lelylaan, tram line 24 from Frederiksplein to de Boelelaan/Vu and streetcar line 4 from Station Rai to Central Station. In addition, Amstel station is just a few minutes by bike.

Details:
- Lovely 3-room apartment of approx. 83 m²;
- Located in the center, with beautiful canal side views;
- New foundation;
- Located on freehold land;
- Energy label C, with double glazing;
- New boiler fitted in 2025;
- 2 bedrooms;
- 2 bathrooms
- High ceilings, unobstructed views and lots of light;
- Roof terrace at the rear, with afternoon and evening sun;
- Healthy and active VvE;
- Service costs € 172,43 per month;
- External storage room of approx. 6m²;
- Delivery in consultation.

Parking:
Paid parking in front on public roads. Residents can apply for a parking permit.
For more information, please visit the website of Amsterdam www.amsterdam.nl/parkeren.

Measuring Instruction:
This house is measured using the Measuring Instruction, which is based on the standards laid down in NEN 2580. The measurement instruction is intended to apply a more uniform way of measuring to give an indication of the usable area. The measurement instruction does not completely rule out differences in measurement results, for example, due to differences in interpretation, rounding off or limitations in carrying out the measurement. Although we have taken careful measurements of the property, neither Boomsma & Bruinsma Makelaars nor the seller accepts any liability for discrepancies in the transmitted measurements. The buyer/tenant declares to have been given the opportunity to check the given measurements (or have them checked).

This information has been compiled by us with due care. However, we accept no liability for any incompleteness, inaccuracy or otherwise, or the consequences thereof. All dimensions and surface areas are indicative. If you have specific wishes regarding the property, we advise you to make these known to your broker in good time and to do your own research (or have this done). If you do not engage an expert representative, you will consider yourself expert enough by law to be able to oversee all matters of importance. The NVM conditions apply.

Legally valid purchase agreement only after signing.
A verbal agreement between private seller and private buyer is not legally valid. In other words, there is no sale. There is only a legal purchase when the private seller and the private buyer have signed the purchase agreement. This follows from Article 7:2 of the Civil Code. A confirmation of the verbal agreement by e-mail or a sent draft of the purchase agreement is not seen as a ‘signed purchase agreement’.
Lees meer Toon minder

Ontdek de omgeving

Openbaar vervoer
Restaurants
Winkels
Cafe's & Barren
Musea & Amusement
Fitness